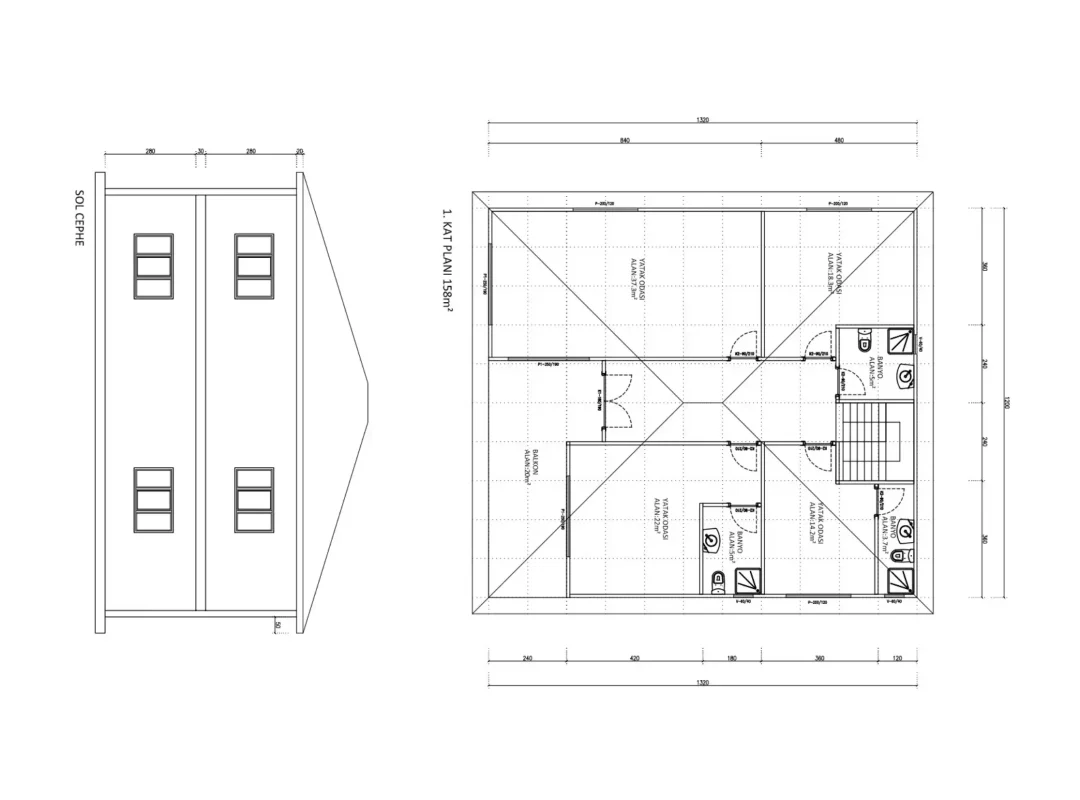
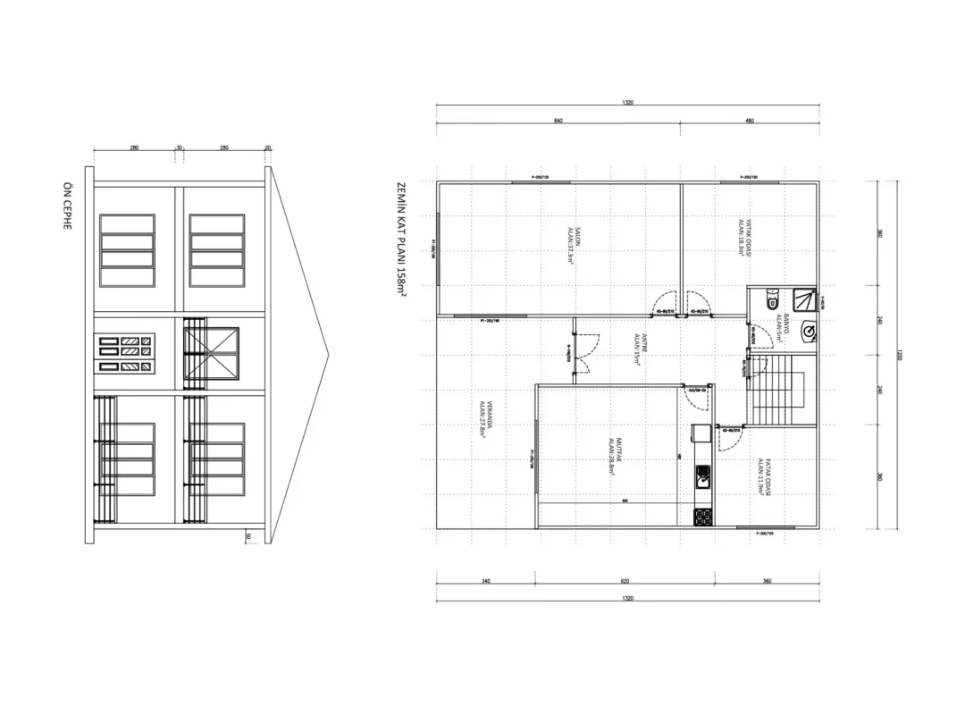
158 m2 Çelik Konstrüksiyon – Kastamonu
Durum
Teslim Edildi
Proje Türü
Çelik Kontrüksiyon
Alan
158 m²
Lokasyon
Kastamonu
Fiyat
m² Fiyatı: 13.500 TL

Genel Özellikler
40 m² Tek Katlı Prefabrik Ev, minimal yaşam tarzını benimseyenler için ideal bir seçenektir. Kullanışlı iç düzeni sayesinde yaşam alanı verimli şekilde değerlendirilmiş olup, hızlı ve kolay kurulum imkanı sunar. Yüksek yalıtım özellikleri ile enerji tasarrufu sağlarken, dayanıklı yapısıyla uzun yıllar güvenle kullanılabilir. Hem yazlık hem de kalıcı konut olarak tercih edilebilecek ekonomik bir çözümdür.
Taşıyıcı Sistem
Galvaniz sacdan Rollform makinesiyle çekilen taşıyıcı H profiller, makas imalatında kullanılan galvaniz U profilleri ile binaların ana taşıyıcı iskeletini oluşturur. Makasları birbiriyle bağlamak ve yapıyı rijit hale getirmek için Rollform makinesinde çekilmiş omega aşıklar kullanılır.
Yapısal Çelik: Prefabrik bina malzeme kesit tayini, SAP 2000 hesap yöntemiyle yapılır ve AutoCAD programında çizilip resimler halinde imalat verilir. Tüm taşıyıcı sistem, Rollform makinesinden çekilen özel H, C ve U modelli galvaniz profillerinden oluşur.
Plan: Ön üretimli prefabrike yapılar, genişlik ve uzunlukları 125 cm’nin katları olacak şekilde uygulanır. Bu yapılar, dört farklı panelin modülasyonundan meydana gelir: dolu duvar paneli, pencereli duvar paneli, vasistaslı duvar paneli ve kapılı duvar paneli. En ağır parça dış kapılı paneldir (90 kg). Tüm mimari çizim ve hesaplamalar, teknik personel tarafından Autocad ve SAP 2000 programları kullanılarak yapılır.
Yapı Elemanları
Dış Duvarlar:
- Yükseklik: 2500 mm, Kalınlık: 100 mm (Pres Panel)
- Dış Yüzey: 8 mm Kalınlığında Çimentolu Yonga Levha (Betopan Marka)
- İç Yüzey: 8 mm Kalınlığında Çimentolu Yonga Levha (Betopan Marka)
- Yangına Tepki (Avrupa Sınıfı): Yangın: B, Duman: s1, Yanıp düşen parçacıklar: d0
- Isı İletkenliği: 0.21 W/mk (8 mm)
- Yangına Dayanım Süresi: TS 1263 (DIN 4102-2)
- Birleşim Elemanları: Galvaniz Rollform makinesi ile tek malzemeden çekilir (1.2 mm)
İç Duvarlar:
- Yükseklik: 2500 mm, Kalınlık: 60 mm (Pres Panel)
- Dış Yüzey: 8 mm Kalınlığında Çimentolu Yonga Levha
- İç Yüzey: 8 mm Kalınlığında Çimentolu Yonga Levha
- Yangına Tepki (Avrupa Sınıfı): Yangın: B, Duman: s1, Yanıp düşen parçacıklar: d0
- Isı İletkenliği: 0.21 W/mk (8 mm)
- Yangına Dayanım Süresi: TS 1263 (DIN 4102-2)
- Birleşim Elemanları: Galvaniz Rollform makinesi ve abkant ile bükülür ve çekilir, kullanılan çelik kalınlığı 0.8 mm ve 1.5 mm arasında galvaniz saçtır
Tavan:
- Kaplama (Normal Mekan): 12 mm Kalınlığında Alçıpan Levha
- Kaplama (Islak Mekan): 8 mm Kalınlığında Betopan
- Birleşme Elemanları: Elektrostatik boyalı galvaniz sac
- İzolasyon: Knauf – Mineral Yün 80 mm Kalınlığında, Genişlik: 1200 mm, Uzunluk: 10000 mm
- Isı iletim Katsayısı: 0.044 (W/mK)
- Isı iletim Direnci: 2.27 R (m²k/W)
- Yangına Tepki Sınıfı: Euroclass A1 (TS EN 13501 – 1)
Çatı Kaplama:
- Kaplama: 0.50 mm Boyalı Trapez Sac, 0.70 mm Boyalı Kremetal Sac, Shingle (Opsiyonel)
- Malzeme: S320 GD+Z, AZ kalite No:1322 olan galvaniz sacdan özel olarak dizayn edilen profiller kullanılarak dizayn edilmiş makas sistemidir.
Diğer Yapısal Bileşenler
Kapılar:
- İç Kapılar: 80×198 cm ebatında metal kasalı, çift taraflı Amerikan kapı
- Dış Kapılar: 90×198 cm ebatında sac kapı (TSE standartlarında), 90×200 cm ebatlarında lüks çelik kapı
Pencere Grubu:
- Pencere: 120×100 cm ölçülerinde PVC pencere
- Vasistas: 40×60 cm ebatlarında PVC doğrama
- Pencere Kasası: 1.2 mm kalınlığında soğuk şekillenmiş galvaniz sacdan
Cam:
- Pencere: 4+12+4 mm kalınlıkta ısıcam
- Vasistas: 4+12+4 mm buzlu ısıcam
Boya:
- Dış Cephe Boya: Çift kat akrilik dış cephe boyası (TSE standartlarında)
- Metal Aksam: Çift kat astar ve çift kat yağlı boya (TSE standartlarında)
- İç Cephe Boya: Çift kat plastik boya (TSE standartlarında)
- Tavan: Çift kat plastik boya (TSE standartlarında)
Elektrik Tesisatı (Sıva Altı):
- Kablo: 3×2,5 NYM TSE standartlarında
- Priz ve Düğmeler: TSE Belgeli
- Aydınlatma: Yuvarlak lüks glop armatür
- WC ve Banyo
Proje Detayları
Hızlı Montaj
24–48 saatte tamamlanan anahtar teslim kurulum.
Depreme Dayanıklı
S235/S355 çelik iskeletle en yüksek sismik performans.
Modüler Esneklik
İhtiyacınıza göre eklenebilir/removable modüler odalar.
Çevre Dostu Üretim
%100 geri dönüştürülebilir malzeme ve atık minimizasyonu.
7/24 Teknik Destek
Teslim sonrası ücretsiz bakım ve uzaktan izleme.
Yüksek Isı Yalıtımı
EPS/XPS dolgu panellerle enerji faturanızı %60 düşürür.